





Toulon (83)
MAISON 1820 IMMOBILIER, vous présente à la location un trés beau local commercial en rez-de-chaussée de 67 m2 donnant sur la rue et traversant, en très bon état général.
Les conditions de location :
- Bail commercial : 3 / 6 / 9
- Disponibilité : Immédiate
- Loyer mensuel HCHT : 920 €/mois HCHT + provision pour charges : 45,00 €/mois
- Indice de révision : ILC annuel
- Régime fiscal : loyer assujettis à la TVA (20%)
- Dépot de garantie : 6 mois soit 5.520,00 euros + caution personnelle du dirigeant, à prévoir en sus.
- QP re-facturation taxe foncière annuel au locataire : 740,00 €/an
- QP re-facturation taxe ordure ménagère annuel au locataire : 140,00 €/an
- QP re-facturation honoraire technique annuel au locataire : 240,00 €/an
- Honoraire de location à la charge preneur : 1.980,00 euros TTC (mandat n°39)
Non soumis au DPE
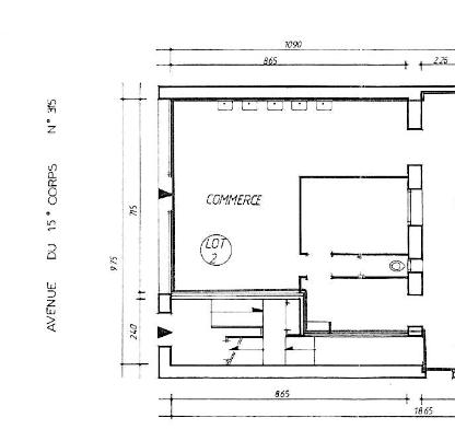
Surface : 67 m2
965 € / mois CC
dont provisions pour charges 45€
Type de location : N/A
Date de disponibilité: Immédiate
Dépôt de garantie: 5.520,00 €€
Honoraires à la charge du locataire: 1.980,00 €€
Référence de l’annonce « MLCO10000084 »
Etage
Rez-de-chaussée
Surface
67m²
Nombre de pièces
1
Extérieur
N/A
Exposition
/
DPE
Vierge
Chauffage
Climatisation réversible
Cave
Non
Parking
Non
Numéro de mandat : 39
Votre contact

Olivier Giordana
0685279889
olivier@maison1820.fr