








Marseille
ENTREPOT (432 M2) A LOUER - COURS LIEUTAUD - SOUS-SOL -1
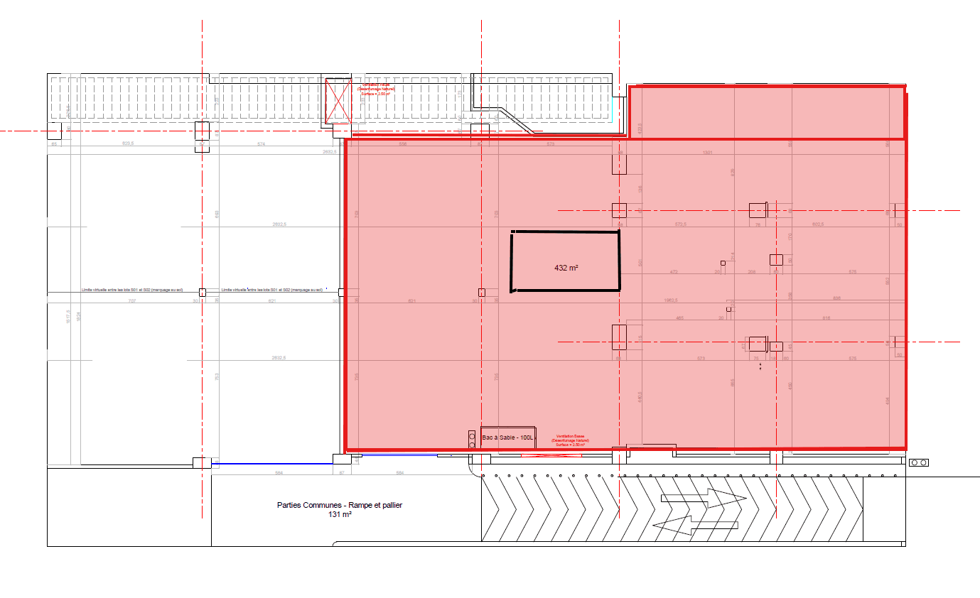
MAISON 1820 IMMOBILIER, vous présente à la location un entrepôt en très bon état, situé sur le Cours Lieutaud, à proximité de la place Castellane, d'une surface de 432 m2, situé en sous-sol et accessible depuis une rampe d'accès donnant sur le Cours Lieutaud.
Les conditions de location :
- Bail commercial : 3 / 6 / 9 à destination d'entrepôt
- Disponibilité : Immédiate
- Loyer mensuel HCHT : 1.850,00 €/mois HCHT + provision pour charges et taxes mensuel : 800,00 €/mois
- Indice de révision : ILC annuel
- Régime fiscal : loyer assujettis à la TVA (+ 20%)
- Dépot de garantie : 6 mois soit 11.000 euros + caution personnelle à prévoir en sus.
- QP re-facturation taxe foncière annuel au locataire : 5.352,00 €/an (inclus dans la provision pour charges et taxes mensuelle de 800,00 €/mois).
- QP re-facturation taxe ordure ménagère annuel au locataire : 2.100,00 €/an (inclus dans la provision pour charges et taxes mensuelle de 800,00 €/mois).
- QP re-facturation honoraire technique annuel au locataire : 1.100,00 €/an (inclus dans la provision pour charges et taxes mensuelle de 800,00 €/mois).
- Honoraire de location à la charge preneur : 3.960,00 euros TTC (mandat n°43)
Non soumis au DPE
Surface : 432 m2
2.650,00 € / mois CC
dont provisions pour charges 800€
Type de location : Bail commercial (3/6/9)
Date de disponibilité: Immédiate
Dépôt de garantie: 11.000€
Honoraires à la charge du locataire: 3.960,00€
Référence de l’annonce « MLCO10000076 »
Etage
Sous-sol -1
Surface
432m²
Nombre de pièces
1
Extérieur
N/A
Exposition
N/A
DPE
Vierge
Chauffage
N/A
Cave
N/A
Parking
N/A
Numéro de mandat : 43
Votre contact

Olivier Giordana
0685279889
olivier@maison1820.fr